Verkauft, notariell besiegelt und bezahlt.
"Idyllisch gelegenes Landhaus am Schliersee"
Paket der ADACPlusMitgliedschaft schuetzt Sie und
Ihren (Ehe-) Partner beim Fuehren aller eigenen wie auch fremden Fahrzeuge
Weitere Bilder findet Ihr hier
Nog mehr fotoos vinden jullie hier
Neue Bilder (bis Oktober 2005) findet Ihr hier
Nieuwe fotoos (tot oktober 2005) vindt je hier
Das Parkett ist fertig hier
Het parket is klaar hier
Es sind ca. 2 MB Foto's, deshalb kann es ein Wenig dauern.
Het zijn 2 MB aan fotoos, dus het kan een beetje lang duren.
Erst mal das momentane Wetter in Schliersee.
Eerst nog even het weer in Schliersee.
Ein paar Eckdaten zu unserem herrschaftlichen Traumhaus:
Ort: Schliersee
Zentrum Schliersse: ca. 150 mtr
Landhausstil
Das Haus wurde 1929 gebaut vom münchner Landesbaurat Max Brücklmeier
Grundstücksfläche ca. 700 qm
Garten: Parkähnlich mit leichtem Hang
Holztreppe
Kasetten-/ Balkendecken
Kachelofen
Natursteinmauerterasse
Veranda
natürlichen Bach
Wohnfläche ca. 200 qm
Nutzfläche ca. 80 qm
Balkon 1: Westausrichtung
Balkon 2: Südausrüstung (Traumhaft)
Balkon 3: Bach
Balkon 4: Bach
Balkon 5: schön
Ausblick 1: Seeblick auf Schliersee
Ausblick 2: Schliersee, Brecherspitz
Ausblick 3: Bauernhof, 14. Jahrhundert
Heizung: Gas
Sonstiges:
Stube mit Holzvertafelung
Parkett mit Intarsien (Erdgeschoss)
Fensterläden
Neues Dach
Gastherme von 1997
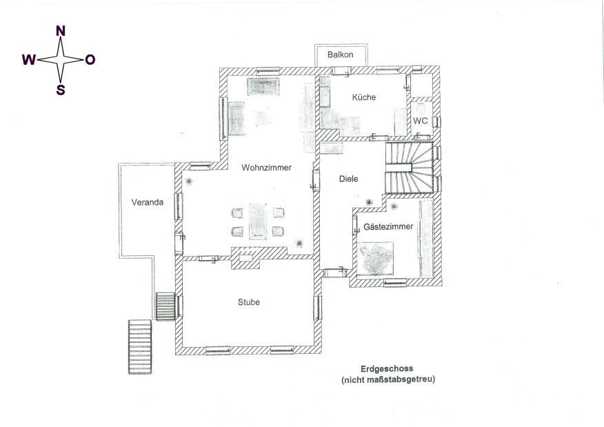
Erdgeschoss:
Wohnzimmer
Stube
Gästezimmer
Küche
grosse Diele
Entree
Veranda
Balkon
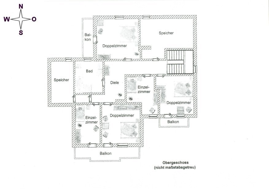
Obergeschoss:
3 Doppelzimmer
2 Einzelzimmer
Grosse Diele
Bad
3 Balkon
2 Speicher
Holzdielen (Obergeschoss)
Kellergeschoss/ Einliegerwohnung:
Wohnzimmer
Schlafzimmer
Wohn-/Essküche
Bad
Diele
Abstellraum
WC
Heiz-/ Waschraum
Abstellraum
Begehbarer Kleiderschrank
Schuppen
Eingang von der Strassenseite

Eingangstüre

Ansicht von der Strassenseite

Ansicht aus dem Garten

Unsere Alm

Unser Bach (Richtung Schliersee)

Unser Bach (Richtung Schliersberg)

Einer der 5 Balkone

Blick von der Veranda !!!!

Ein neues Haustier
(Die Katzen freuen sich schon)

Garage
(Nächste Nachbarn im Hintergrund)

Südblick aus Schlafzimmer auf dem Schliersee

Veranda (Westseite)

Detail Veranda-Aufgang

Eine Aussentreppe